128 m²
4
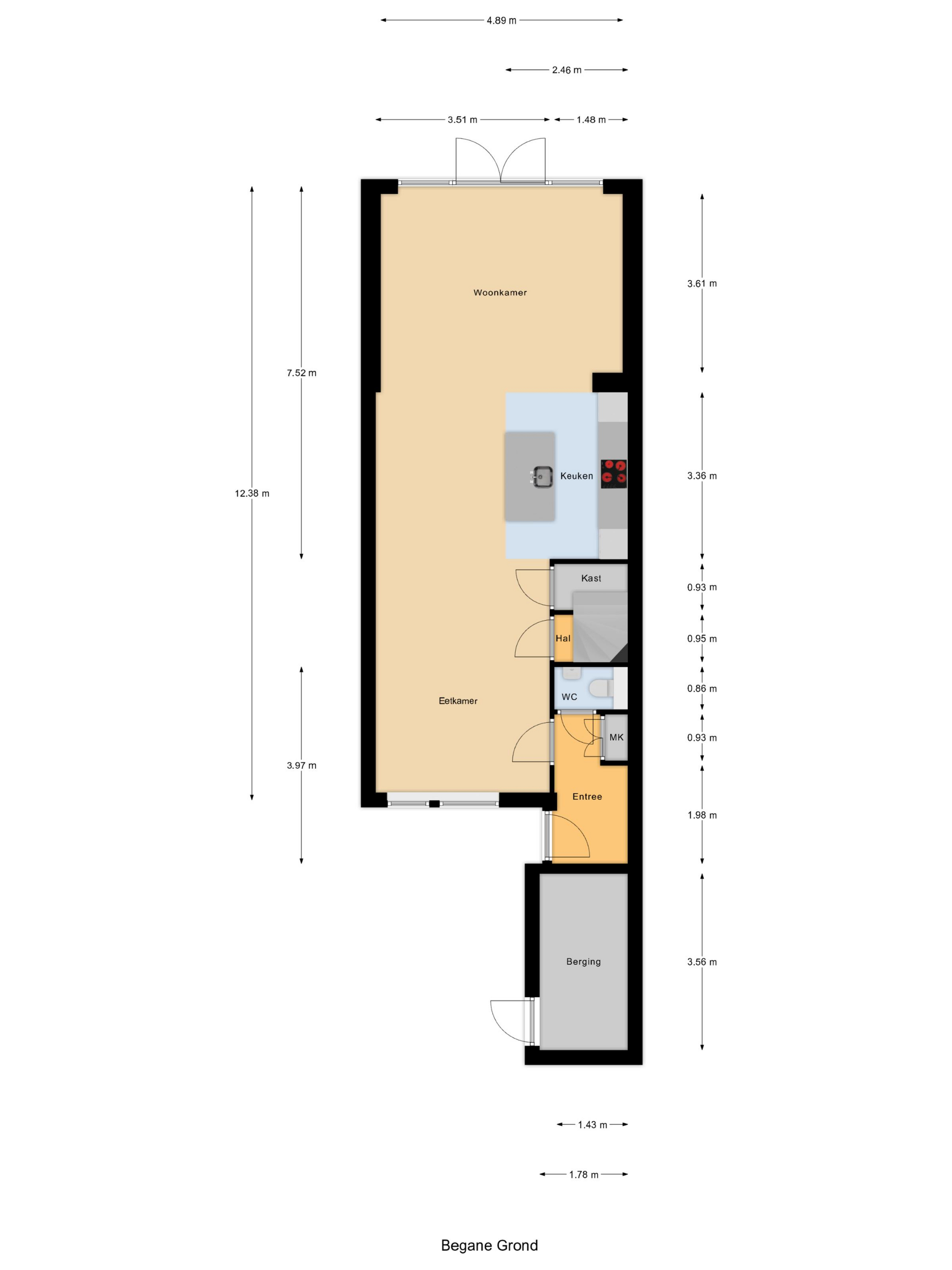
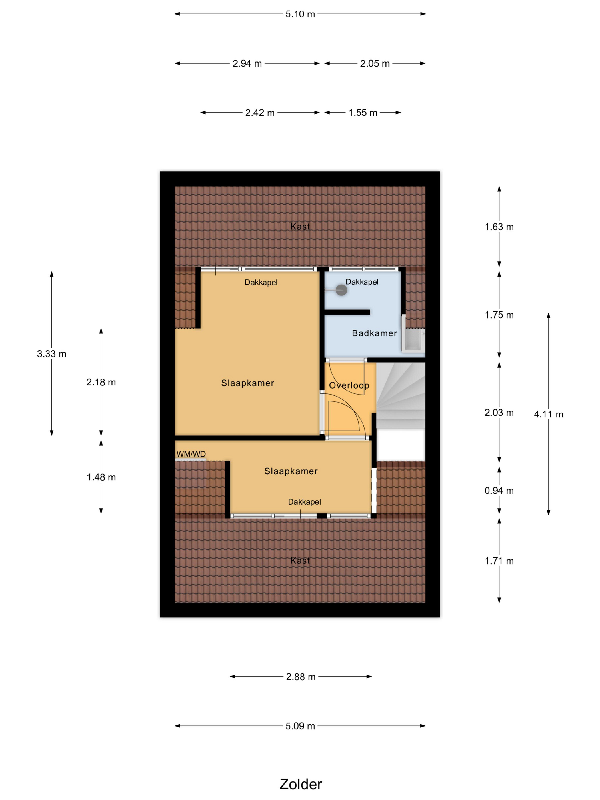
2026-02-20Verrassend ruime, uitgebouwde eengezinswoning met liefst twee badkamers! – Mantingestraat 37, Tilburg Op zoek naar een heerlijk ruime en instapklare woning op een centrale, kindvriendelijke locatie? Dan is deze keurig afgewerkte tussenwoning aan de Mantingestraat 37 absoluut een bezichtiging waard. Met een riante uitbouw, vier slaapkamers én een verrassende tweede badkamer op zolder, biedt dit huis opvallend veel wooncomfort voor het hele gezin. Ligging & Omgeving De woning ligt op een uitstekende en centrale locatie in de geliefde wijk Reeshof. Je woont hier in een rustige, kindvriendelijke omgeving met het groene Maarheezepark letterlijk om de hoek. Ideaal voor een wandeling of voor spelende kinderen. Ook diverse basisscholen en andere dagelijkse voorzieningen bevinden zich op comfortabele loopafstand. Indeling Begane grond Via de circa 5 meter diepe voortuin, waar zich ook de praktische stenen berging (voorzien van elektra) bevindt, bereik je de entree. De ruime hal beschikt over de meterkast, een garderobenis en een nette toiletruimte met fonteintje. Bij binnenkomst in de leefruimte valt direct de hoeveelheid daglicht en de ruimtelijkheid op, mede dankzij de grote uitbouw aan de achterzijde. De begane grond is hoogwaardig afgewerkt met een luxe eikenhouten vloer in het zitgedeelte en een strakke tegelvloer mét vloerverwarming in de aanbouw. De comfortabele airconditioning zorgt hier het hele jaar door voor een perfect binnenklimaat. De afgesloten trapopgang en een handige provisiekast zorgen voor extra opbergruimte. Aan de voorzijde bevindt zich de open keuken. Deze is compleet uitgerust met diverse inbouwapparatuur, waaronder een keramische kookplaat, afzuigkap, combimagnetron, koelkast en een vaatwasser. Eerste verdieping De overloop geeft toegang tot drie keurig afgewerkte slaapkamers, allen voorzien van een nette laminaatvloer. De hoofdslaapkamer is uitgerust met airconditioning voor een optimale nachtrust. De badkamer is volledig betegeld en compleet ingericht met een heerlijk ligbad, een aparte douchecabine, een wastafel en een toilet. Zolder Via een vaste trap bereik je de indrukwekkende zolderetage. Dankzij de dakkapel en de prettige nokhoogte is hier een volwaardige en ruime vierde slaapkamer gecreëerd. Wat deze verdieping uniek maakt, is de aanwezigheid van een volwaardige tweede badkamer, compleet met inloopdouche en wastafel. Ideaal voor opgroeiende kinderen of logees! Daarnaast is er een zeer praktische wasruimte/inloopkast gerealiseerd met de aansluitingen voor de wasapparatuur. Buitenleven De achtertuin, gelegen op het noordoosten, is onderhoudsvriendelijk en strak aangelegd. Omdat de berging slim aan de voorzijde van de woning is geplaatst, is de achtertuin verrassend ruim en over de volle breedte te benutten. De tuin is voorzien van een buitenkraantje en beschikt uiteraard over een praktische achterom, wat onmisbaar is met (klein)kinderen of fietsen. Highlights van Mantingestraat 37: - Instapklare en keurig onderhouden tussenwoning; - Begane grond is flink vergroot middels een uitbouw (met vloerverwarming); - Luxe eikenhouten vloer in de woonkamer; - Liefst 4 slaapkamers en 2 badkamers; - Voorzien van airconditioning in de woonkamer en slaapkamer; - Grotendeels voorzien van rolluiken; - Stenen berging aan de voorzijde, waardoor de achtertuin extra ruim is; - Gasloos wonen: de woning is aangesloten op stadsverwarming; - Zeer kindvriendelijke ligging nabij het Maarheezepark en basisscholen. Neem zo spoedig mogelijk contact met ons op om te kijken naar de mogelijkheden!
