147 m²
4
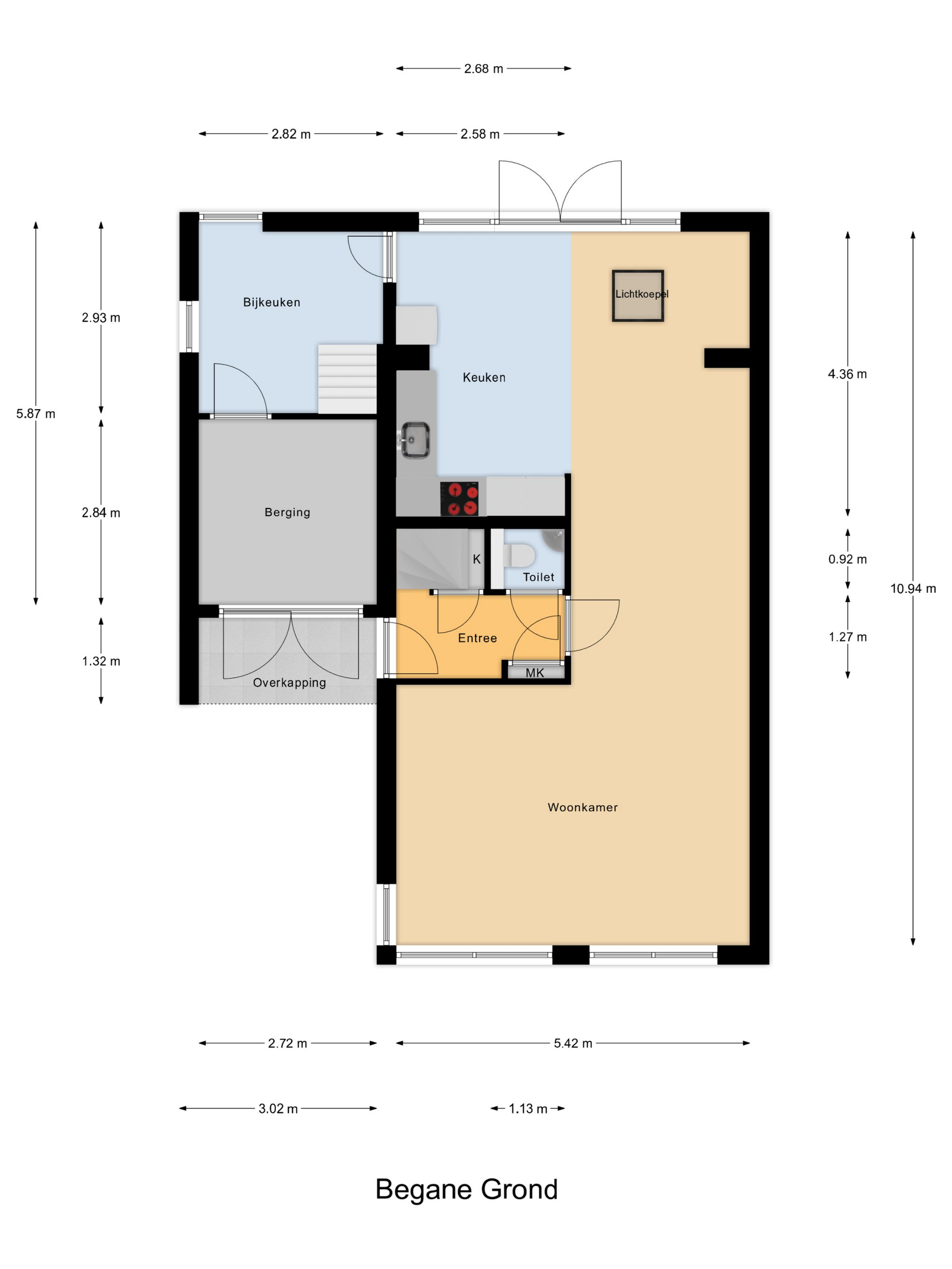
2026-02-10Royale 2-onder-1-kapwoning aan het water: Tuin op het zuiden, 12 zonnepanelen én garage! – Honderdbunder 1, Breda Op zoek naar een ruime gezinswoning die comfort, duurzaamheid en een geweldige ligging combineert? Dan is deze 2-onder-1-kapwoning aan de Honderdbunder 1 in Breda precies wat je zoekt. Met een heerlijke leefkeuken, een zonnige tuin op het zuiden, 12 zonnepanelen en een multifunctionele aanbouw is dit huis helemaal klaar voor de toekomst. Ligging & Omgeving De woning ligt in de geliefde wijk Heksenwiel, onderdeel van de Haagse Beemden. Een heerlijk rustige en kindvriendelijke omgeving waar je alles bij de hand hebt. Voor de dagelijkse boodschappen wandel je zo naar het uitgebreide winkelcentrum Heksenwiel. Ook diverse basisscholen en sportverenigingen bevinden zich op loopafstand. Binnen enkele minuten fiets je naar recreatieplas de Asterdplas. Daarnaast is de bereikbaarheid uitstekend: de uitvalswegen, het bruisende centrum van Breda en station Breda-Prinsenbeek zijn met de auto snel en eenvoudig te bereiken. Indeling Begane grond Je parkeert gemakkelijk twee auto's op de eigen oprit en komt binnen in de hal. Hier vind je de meterkast, de trapopgang en het separaat toilet. Bij binnenkomst in de leefruimte valt direct het comfort op; de begane grond is namelijk voorzien van vloerverwarming (warm water). Aan de voorzijde bevindt zich het gezellige zitgedeelte met vrij zicht op de straat. Aan de achterzijde vind je het hart van het huis: de riante leefkeuken. Dankzij de lichtkoepels geniet je hier van een zee aan licht en ruimte. De open keuken is van alle gemakken voorzien en compleet uitgerust. Vanuit de keuken heb je toegang tot de multifunctionele aanbouw. Deze ruimte is ideaal als kantoor aan huis, hobbyruimte of speelkamer voor de kinderen. Via deze ruimte bereik je de aangebouwde stenen garage. Een groot pluspunt is de ruime vide boven de schuur/garage, wat zorgt voor extra bergruimte. De garage is tevens via de oprit aan de voorzijde toegankelijk. Eerste verdieping De overloop geeft toegang tot drie fijne slaapkamers. De badkamer is netjes uitgevoerd en beschikt over een douche, een wastafelmeubel en toilet. Zolder Via een vaste trap bereik je de zolderetage. Hier bevindt zich een ruime vierde slaapkamer. Op de voorzolder vind je de aansluitingen voor de wasapparatuur en de opstelling van de CV-ketel (Remeha, 2022). Buitenleven De achtertuin is een ideaal voor zonliefhebbers. Gelegen op het zonnige zuiden geniet je hier vrijwel de hele dag van de zon. De ligging direct aan het water geeft een unieke sfeer, veel privacy en een natuurlijk gevoel. Omdat het een hoekwoning betreft, beschik je bovendien over een eigen poort (achterom), wat erg praktisch is. Highlights van Honderdbunder 1: - Ruime 2-onder-1-kapwoning (hoekligging) met garage en vide; - Gelegen in de gewilde wijk Heksenwiel nabij voorzieningen en natuur; - Parkeren op eigen terrein (plek voor 2 auto’s); - Lichte leefkeuken met lichtkoepels; - Multifunctionele aanbouw (ideaal voor kantoor/praktijk); - 4 ruime slaapkamers; - Duurzaam: Voorzien van 12 zonnepanelen, vloerverwarming en een jonge CV-ketel (2022); - Zonnige tuin op het zuiden aan het water met eigen achterom; - Energielabel C (vóór het plaatsen van uitbouw, de zonnepanelen en isoleren van de bijkeuken!) Zie jij jezelf hier al wonen? Wacht dan niet te lang en plan direct een bezichtiging in!
